
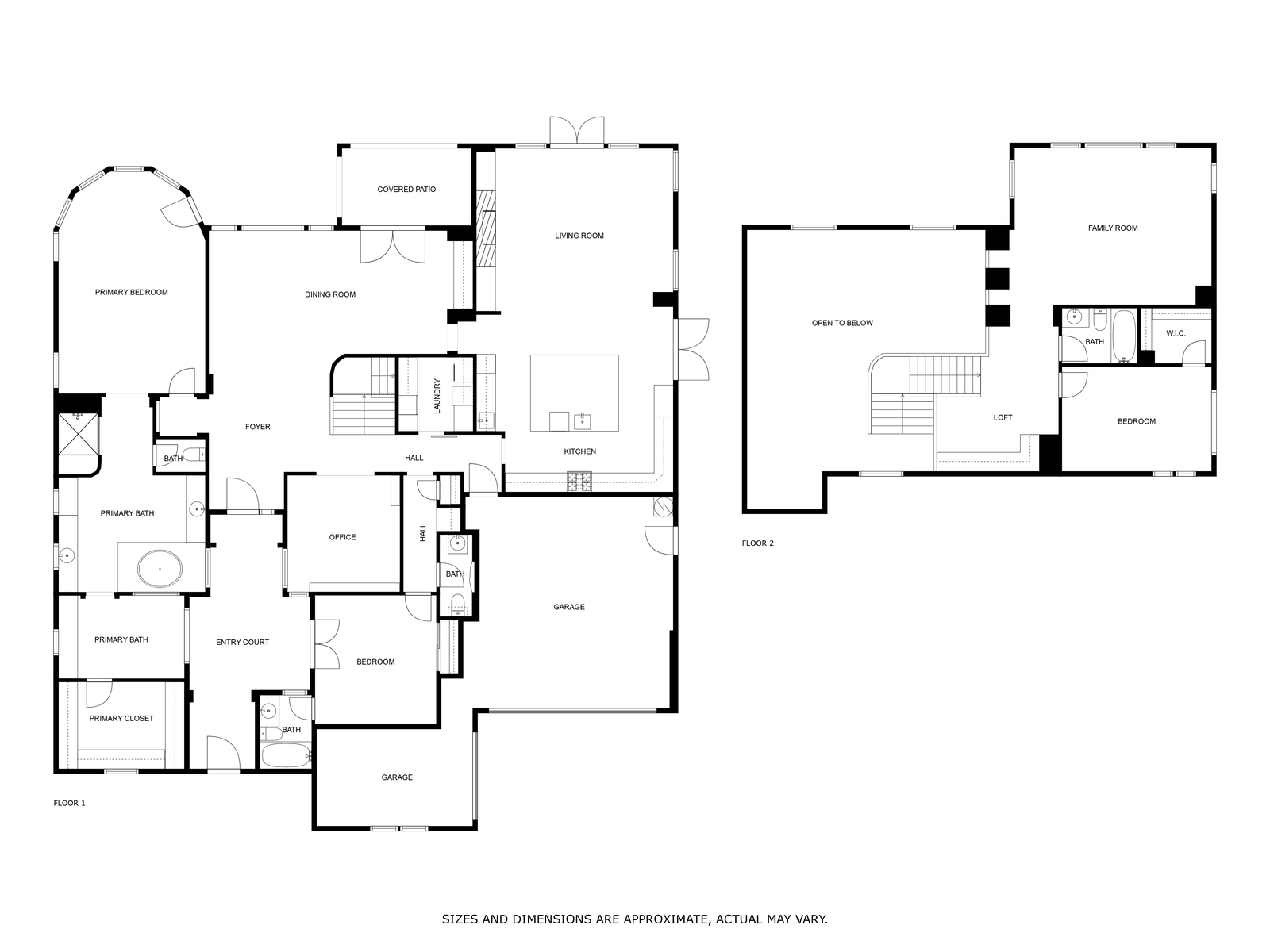
If you’re looking for an impressive Estate Home on a prime golf course lot with spectacular views of multiple fairways, ponds, and soaring Eucalyptus groves, then this stunning Romauldo home is for you! Beautifully crafted with 3 bedrooms, 3.5 baths and offering 3,724 sq. ft. of majestic living space and some of the best views in all of Trilogy. Enter through the enclosed private courtyard and you’ll be in awe - this stately home is a highly upgraded entertainer’s dream. The culinary kitchen (remodeled in 2022) is amazing - featuring a 36” Sub-Zero built-in refrigerator with separate 30” freezer drawers with ice maker, 2 KitchenAid dishwashers, 48” Wolf Range with 6 burners, griddle and 2 ovens, NEW upgraded exhaust fan, black granite counters and oversized island with seating and loads of storage, Farmhouse sink, 2nd sink with instant hot/cold purified water, white KraftMaid cabinetry with full extension drawers, built-in bar with beverage fridge, walk-in pantry/laundry, and French doors leading to a private side yard with lush landscaping. Adjacent is a spacious den with custom stone gas fireplace, built-in cabinets/bookcases and French doors leading to the back patio. Next is an open dining room with cathedral ceilings, dramatic stone accent wall, multi-strand chandelier, built-in bar/buffet, floor-to-ceiling windows and more French doors. Outside, the flagstone patio is inviting and the views are magnificent. The owner’s suite is an entire wing - the bedroom is commanding with a curved wall of windows with custom shades and remote blinds, a delightful chandelier, and direct patio access. The primary bath is luxurious with Travertine floors, pebble tile insets, dual sinks, make-up vanity, custom mirrors, Roman tub, tile shower with seamless glass enclosure and extra body sprays. Adjacent is a bonus room for a dressing area, gym, or office, and a substantial walk-in closet with custom built-ins. Completing the downstairs is a bedroom with courtyard entrance and on-suite bathroom, an office/hobby room, and a lovely half bath. Upstairs, you’ll find a loft with built-in library cabinetry and sitting area, a 3rd bedroom with walk-in closet and en-suite bathroom, and a huge bonus/game room with gorgeous bird’s eye views. Finishing out this magnificent Trilogy home is a 2-car garage with separate golf cart garage, ambient outside lighting, 2 HVAC units, SOLAR monthly contract, 2022 exterior paint, and so much more.